
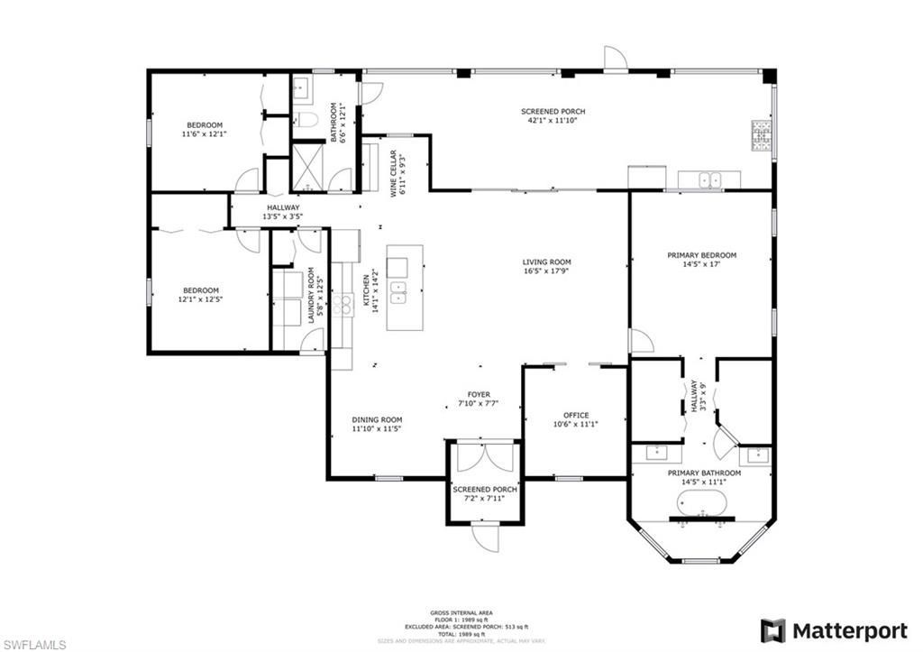
3-bedroom plus den, 2-bath home with impact windows set on a fully fenced and landscaped half-acre lot, with property extending beyond the fence for additional space and privacy. No HOA restrictions provide flexibility for storage, outdoor projects, or future improvements.The interior features soaring ceilings and an open living and dining area with abundant natural light. The kitchen includes quartz countertops, a large island with breakfast bar, stainless steel appliances, and an ECO Verse wat...3-bedroom plus den, 2-bath home with impact windows set on a fully fenced and landscaped half-acre lot, with property extending beyond the fence for additional space and privacy. No HOA restrictions provide flexibility for storage, outdoor projects, or future improvements.The interior features soaring ceilings and an open living and dining area with abundant natural light. The kitchen includes quartz countertops, a large island with breakfast bar, stainless steel appliances, and an ECO Verse water filtration system with a dedicated kitchen tap. A coffee bar with cabinetry and wine storage adds extra functionality. Tile flooring runs throughout the home, creating a cohesive and low-maintenance interior.The primary bedroom suite includes an ensuite bathroom with soaking tub, separate shower, and updated finishes. Two additional bedrooms share a full bathroom. The den offers flexible use as a home office, guest room, or study.Laundry includes a 2023 Samsung top-load washer and dryer.Outdoor areas include a screened patio with wet bar and refrigerator, designed for casual gatherings and everyday use. The backyard features a sunken patio with pergola and sunshade, creating a shaded outdoor seating area.Additional features include security cameras and a 5-zone irrigation system for landscaping maintenance. A half-acre lot, impact windows, and no HOA combine space, privacy, and practical upgrades.
View MoreCourtesy of
Agency Name: Redfin Corporation
Agency Phone: 407-415-5901
Agent Name: Isabel Arias Squires
Presented by
Agent Name: Carlos A. Melendez
Agent Phone: 561.676.7112
Agency Title: The Keyes Company
Request Info
Send an email with a link to
1020 Rush Ave, Lehigh Acres, FL 33972.
Email 1020 Rush Ave, Lehigh Acres, FL 33972
Thank you for your inquiry! As a thank you, we have a Special Mortgage Offer for You.
We would like to provide you a free, no-obligation, home loan pre-approval review.