
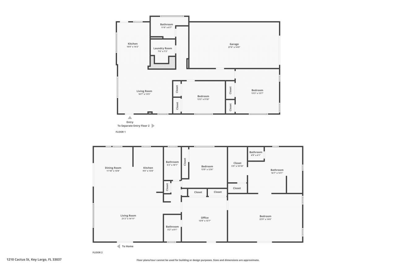
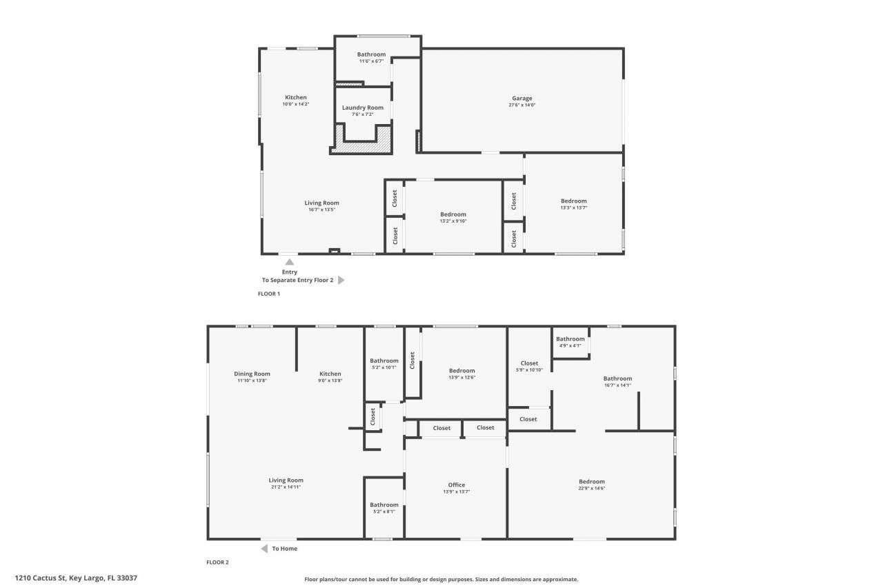
Waterfront Key Largo RetreatThis exceptional all-CBS with concrete roof canal-front home offers direct ocean access and puts world-class fishing and diving right at your doorstep, all while being ideally located for an easy mainland commute.The permitted first-floor addition was added in 2001 and features 2 bedrooms, 1.5 baths, and a garage. The upstairs main living area has a recent 720 sq. ft. addition, creating a stunning master suite with a spacious bedroom and spa-like bath. The open-concep...Waterfront Key Largo RetreatThis exceptional all-CBS with concrete roof canal-front home offers direct ocean access and puts world-class fishing and diving right at your doorstep, all while being ideally located for an easy mainland commute.The permitted first-floor addition was added in 2001 and features 2 bedrooms, 1.5 baths, and a garage. The upstairs main living area has a recent 720 sq. ft. addition, creating a stunning master suite with a spacious bedroom and spa-like bath. The open-concept upper level blends living, dining, and kitchen spaces, along with additional bedrooms and 2 baths, perfect for hosting family and friends.Enjoy a 60-foot split-level concrete dock with step-down access for kayaks, paddle boards, and low-profile vessels. Entertain on the expansive porch or take advantage of ample parking for boats, RVs, and trailers.Whether it's a sunrise paddle, an afternoon fishing trip, or an evening cruise, this property is your launch point for all your Florida Keys adventures. Don't miss your chance to live the waterfront lifestyle you've always dreamed of. Seller Financing Possible.
View MoreCourtesy of
Agency Name: American Caribbean Real Estate, Christie's International Rea
Agency Phone: (305) 664-4966
Agent Name: Joel Young
Presented by
Agent Name: Carlos A. Melendez
Agent Phone: 561.676.7112
Agency Title: The Keyes Company
Request Info
Send an email with a link to
1210 Cactus Street, Key Largo, FL 33037.
Email 1210 Cactus Street, Key Largo, FL 33037
Thank you for your inquiry! As a thank you, we have a Special Mortgage Offer for You.
We would like to provide you a free, no-obligation, home loan pre-approval review.