
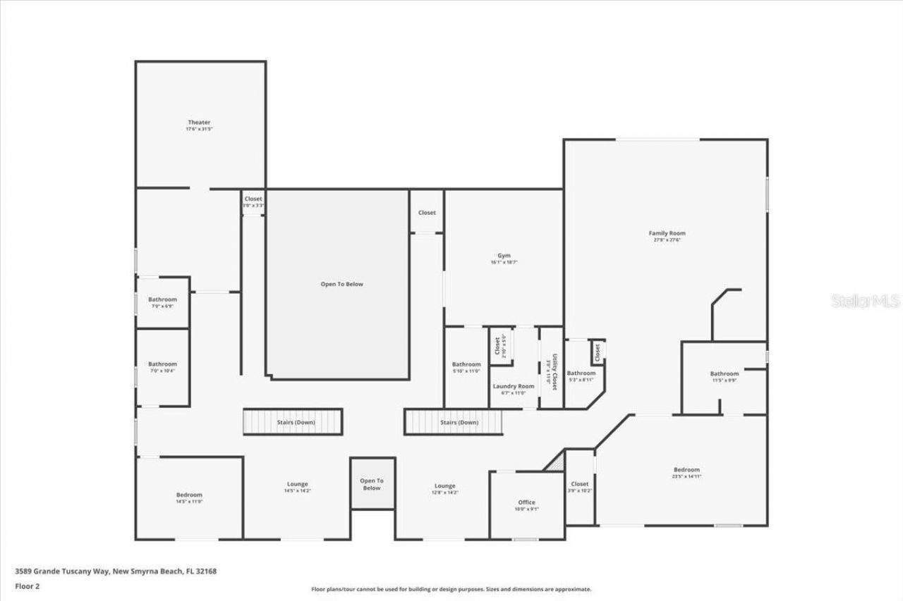
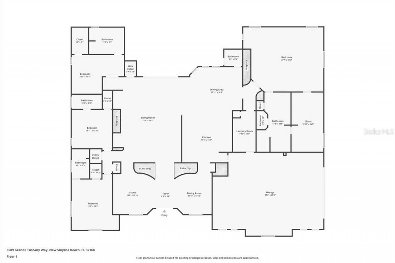
Built by Johnson Group Homes as the builder's personal custom residence, this extraordinary estate is located in the award-winning Venetian Bay golfing community in New Smyrna Beach, where he served as the original developer, and is nestled on over a half-acre lakefront cul-de-sac lot with a tiered fountain centerpiece in the highly sought-after gated enclave of Tuscany Reserve. Offering in excess of 8,000 SF under air and over 11,000 SF total, this fully furnished turnkey mansion features 6 bed...Built by Johnson Group Homes as the builder's personal custom residence, this extraordinary estate is located in the award-winning Venetian Bay golfing community in New Smyrna Beach, where he served as the original developer, and is nestled on over a half-acre lakefront cul-de-sac lot with a tiered fountain centerpiece in the highly sought-after gated enclave of Tuscany Reserve. Offering in excess of 8,000 SF under air and over 11,000 SF total, this fully furnished turnkey mansion features 6 bedrooms, 10 bathrooms (7 full, 3 half), a grand travertine entry with large wood doors, soaring foyer flanked by a formal dining room and music room complete with baby grand, dual staircases, a massive living room with fireplace and balconies above, a wine cellar, wet bar, and chef's kitchen with granite counters, pantry, and GE Monogram stainless appliances. The downstairs primary suite is fit for royalty with its own fireplace, 3-way mirrored dressing room, 20' walk-in closet, garden tub, and separate shower, while 3 additional guest suites are also located on the main level. Step outside to the lanai with outdoor kitchen, pool bath, shower, and a spectacular 150' saltwater pool with beach entry, landscaped island, arched bridge, spillover hot tub, and expansive paver deck overlooking the lake. Upstairs you'll find 2 more bedroom suites, multiple balconies, 2 offices, a flex space, wood-paneled theater room with wet bar and half bath, billiards/game room with sports d?cor, wet bar, balcony, and half bath, plus a mirrored fitness studio outfitted with top-tier cardio and strength equipment. Every bedroom has its own walk-in closet with built-ins, and laundry rooms are located on each floor. Additional features include a 4-car garage (two tandem spaces) with cabinetry, tile roof, mature landscaping, central vac, whole-house generator, water treatment system, lightning protection, propane tanks, electric hurricane shutters, plantation shutters on interior windows, art niches, and extensive built-ins throughout. Just 15 minutes to the Atlantic Ocean beaches and Intracoastal Waterway, and close to downtown NSB's historic district, shops, restaurants, parks, and entertainment, this home is unlike anything else-built to the highest standards and impossible to replace at this price. ALL INFORMATION IS ASSUMED ACCURATE BUT NOT GUARANTEED. ALL MEASUREMENTS ARE APPROXIMATE. BUYERS AND THEIR AGENTS SHALL VERIFY ANY INFORMATION DEEMED IMPORTANT TO THEM.
View MoreCourtesy of
Agency Name: COLLADO REAL ESTATE
Agency Contact: 386-427-0002
Agent Name: Scott Yurchison
Presented by
Agent Name: Carlos A. Melendez
Agent Phone: 561.676.7112
Agency Title: The Keyes Company
Request Info
Send an email with a link to
3589 Grande Tuscany Way, New Smyrna Beach, FL 32168.
Email 3589 Grande Tuscany Way, New Smyrna Beach, FL 32168
Thank you for your inquiry! As a thank you, we have a Special Mortgage Offer for You.
We would like to provide you a free, no-obligation, home loan pre-approval review.