
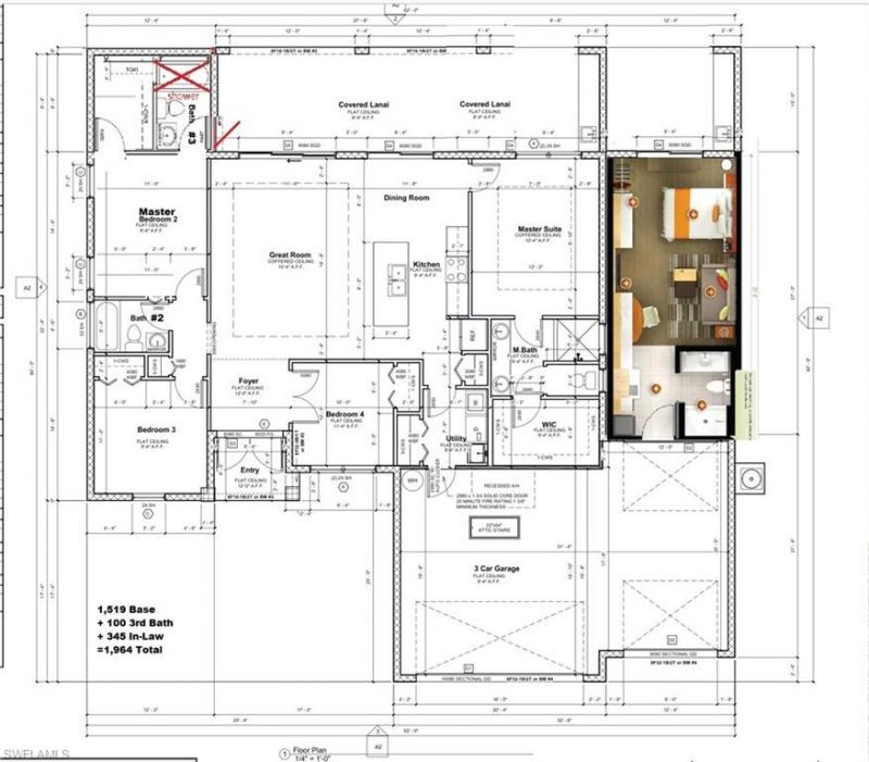
NO HOA - NO FLOODZONE - NO ASSOCIATION - 4BR/3bath/3car with Drive-thru 3rd car for additional hidden parking / storage on side behind 3rd garage. 3rd FULL Bath off HUGE Lanai & 2nd MBR. HUGE 37 x 10 LANAI has Summer Kitchen w/ Sink. OVERSIZED LOT backs up to beautiful canal. Near I82/Parkdale/Homestead/Jaguar. Still Time to Make Selections. OPEN CONCEPT FLOORPLAN with Large Island Kitchen. Gorgeous Finishes throughout. FULL Tile Floors and Shower/Tub Walls w/ Crack Isolation membrane. Premium 4...NO HOA - NO FLOODZONE - NO ASSOCIATION - 4BR/3bath/3car with Drive-thru 3rd car for additional hidden parking / storage on side behind 3rd garage. 3rd FULL Bath off HUGE Lanai & 2nd MBR. HUGE 37 x 10 LANAI has Summer Kitchen w/ Sink. OVERSIZED LOT backs up to beautiful canal. Near I82/Parkdale/Homestead/Jaguar. Still Time to Make Selections. OPEN CONCEPT FLOORPLAN with Large Island Kitchen. Gorgeous Finishes throughout. FULL Tile Floors and Shower/Tub Walls w/ Crack Isolation membrane. Premium 42 cabinets & Quartz Tops. Kwikset Signature door handles. Moen Plumbing Fixtures. Openers w/ wifi. Premium GE Appliances. Our Properly Compacted Fill Soil Foundation is the only proven technique to eliminate Structural Cracks and Settling failures. HunterHomes.us is the ONLY Builder who properly installs foundation fill material that is PROPERLY SOURCED, PLACED, COMPACTED & TESTED with FULL INSPECTION REPORTS. QUALITY MATERIALS AND INSTALLATIONS offered by Award Winning Builder for over 40 years from the Midwest. The BEST Designs, Floorplans & Quality! HURRICANE CONSTRUCTION w/ IMPACT WINDOWS & DOORS. TITAN 160mph SHINGLES, STEEL REINFORCED CONCRETE BLOCK,AFFORDABLE AWARD WINNING DESIGNS! ........A Better Way To Live........Designed For Life........AFFORDABLE BEAUTIFUL MODERN HOMES. WHY SETTLE FOR LESS ? Builder has Other Plans in Other Locations UNDER CONSTRUCTION NOW. Se habla Espa?ol - DOS TRES NUEVE DOS CUATRO OCHO TRES CUATRO SIETE SIETE. Another 3-Car Plan (Cayman) is almost completed at 529 Theodore Vail St E.(SEE PHOTOS & OPTIONS & OTHER HOUSE PLANS at Builder online OR 529 Theodore Vail St E) ID 20-45-27-49-00173.0050
View MoreCourtesy of
Agency Name: Berkshire Hathaway Florida
Agency Phone: 239-482-5700
Agent Name: Craig Corbell
Presented by
Agent Name: Carlos A. Melendez
Agent Phone: 561.676.7112
Agency Title: The Keyes Company
Request Info
Send an email with a link to
728 La Plata Ave, Lehigh Acres, FL 33974.
Email 728 La Plata Ave, Lehigh Acres, FL 33974
Thank you for your inquiry! As a thank you, we have a Special Mortgage Offer for You.
We would like to provide you a free, no-obligation, home loan pre-approval review.